Die Tür zwischen den Laibungen


Eine gegenläufige Doppeltür ist eine Spezialität, die fast nur mit einer Blockrahmentür möglich ist. Bild: Frank Türen AG


Eine gegenläufige Doppeltür ist eine Spezialität, die fast nur mit einer Blockrahmentür möglich ist. Bild: Frank Türen AG
Rahmentypen. Vor allem eine Rahmenkonstruktion ermöglicht es, die Tür in einer beliebigen Tiefe der Laibung zu positionieren. Die Blockrahmentür hat Vorteile gegenüber anderen Konstruktionen, aber es gibt auch Aspekte, die besondere Aufmerksamkeit verlangen.
Wenn beim Durchgang die Tür mit Rahmen einfach flächenbündig weitergeht, ist in den meisten Fällen eine Blockrahmentür verbaut worden. Wegen dieser Möglichkeit des ebenen Überganges ist sie momentan speziell in modernen Bauten sehr beliebt. Das spricht aber nicht alleine für dieses Konstruktionsprinzip. Was sind denn weitere Möglichkeiten, Vor- sowie Nachteile dieses Rahmentyps?
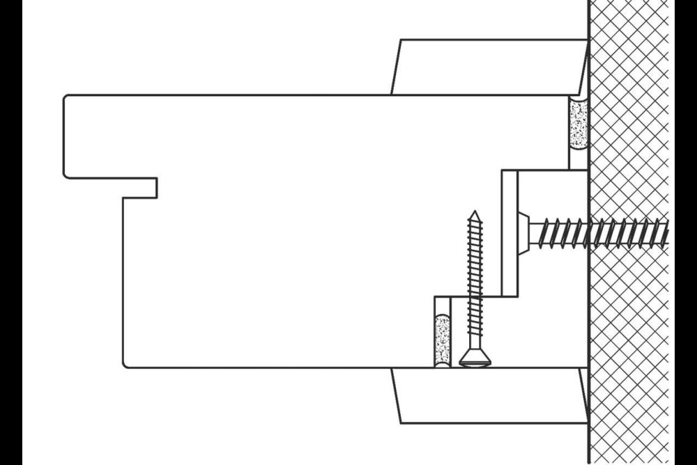
Die Blockrahmentür wird zwischen die Mauerlaibungen gestellt und kann dort in der Tiefe frei positioniert werden. Damit sind der Rest der Laibung sowie alle Übergangskanten zu den Flächen auf beiden Wandseiten sichtbar. Der Anspruch an die Genauigkeit der Maueröffnung ist also sehr hoch, denn Ungenauigkeiten können nicht kaschiert werden wie bei einer Futtertür. Zwangsläufig müssen die Rahmen und Blattkanten im Lot und parallel sein, damit die Tür funktioniert. Entsprechend fällt eine schiefe Wandöffnung sehr stark auf.
Mit dem Blockrahmen besteht die Möglichkeit, in einem Gang eine Tür zu setzen. Das Blatt kann überfälzt oder bündig sein. Ist die Rahmendicke gleich wie das beispielsweise bündige Türblatt, entsteht die Wirkung einer Trennwand. Beidseitige Deckleisten hingegen betonen gerade in einem Korridor den Raumabschluss, da der Übergang von der Wand zum Rahmen prägnanter ist.
Durch eine geschickte Wahl der Rahmenfriesbreiten kann sichergestellt werden, dass der Öffnungswinkel des Blattes mindestens 90° beträgt und nicht vorher wegen des Drückers und dessen Anschlagpuffer begrenzt wird. Diese Situation weist auch gleich auf ein Problem hin: Der Durchgang wird mit dieser Konstruktion massiv enger, da der Rahmen einiges an Platz wegnimmt und die geöffnete Tür je nach Band noch zusätzlich Platz im Licht beansprucht. Gerade in Gebäuden, wo Dinge, die eine feste Breite haben, wie Rollstühle, den Durchgang passieren oder es sich um Fluchtwege handelt, gilt es, dem schon in der Planung die notwendige Aufmerksamkeit zu schenken. Massgebend ist die lichte Durchgangsbreite. Nicht jeder Architektenplan berücksichtigt das schon.
Ein Rahmen, der gleich dick wie das Türblatt ist, aber nicht den gleichen Aufbau haben kann, isoliert auch nicht gleich. Um den ungünstigeren Wert einzudämmen, braucht es beim Übergang zweier Temperaturzonen – wie bei Aussentüren – eine Isolation des Rahmens. Idealerweise wird dieser bündig mit der Aussenwand gesetzt und die Fassadenisolation gleich darübergezogen.
Gummidichtungen für das Türblatt sind im Eingangs- wie Zimmertürbereich selbstverständlich. Erstaunlicherweise wird aber der Maueranschluss oft vergessen. Das ist aber gerade bei dieser Konstruktion sehr wichtig. Der Rahmen muss bei der Eingangstür zur Mauer hin beidseitig abgedichtet werden, damit keine Kältebrücke entsteht. Bei Innentüren verhindert das Ausfugen auf mindestens einer Seite mögliche Zugluft.
Jede Tür, die zuschlägt, erzeugt Körperschall, der durch die feste Verbindung mit dem Gebäude auch gleich bestens übertragen wird. Alles, was zu dieser starren Verbindung beiträgt, muss also entsprechend gedämmt werden.
Der Blocktürrahmen ist nicht auf die Wand montiert, sondern dazwischengehängt, und die Befestigung ist somit der Schwerkraft ausgesetzt. Die Mauerdübel müssen schallabsorbierend sein. Brandschutztüren bilden da die Ausnahme, da spezielle Dübel vorgeschrieben sind. Jeder Kontaktpunkt mit der Wand sollte zudem mit einem schalldämmenden Band vollflächig unterlegt sein. Der Kontakt von festen Elementen wirkt übertragend, egal, ob das die Falzleiste, eine Nutleiste oder direkt der Rahmen ist. Eine Aussenisolation aus Styropor kann Schall verstärkt weiterleiten. Es empfiehlt sich da, etwas Luft zum Rahmen zu lassen und den Spalt mit Silikon auszufugen.
Ein Unterlagsboden darf wegen der Schallübertragung nur bis kurz vor den Rahmen reichen, der auf einem Schalldämmstreifen direkt auf dem Betonboden steht.
Ganz anders ist die Wirkung beim Luftschall: Wo Luft durchkommt, wird auch der Schall mitgetragen. Der Blockrahmen ist diesbezüglich empfindlich, da der Wandanschluss langfristig dicht sein und bleiben muss. Ein späteres Nachbessern ist nicht ohne Weiteres möglich. So muss der Wand- und Deckenanschluss beidseitig ausgefugt sein. Das gilt natürlich auch für den Boden, wenn der Rahmen nur darauf steht.
Die schöne durchgängige Optik von Rahmen und Blatt hat beim Luftschall Nachteile. Wie bei der Wärmedämmung bilden auch hier wieder die Rahmenfriese einen Schwachpunkt. Der Aufbau kann speziell bei schmalen Friesen nicht wie beim Blatt aus verschiedenen Materialien geschichtet sein und kommt somit auch nicht auf den gleichen Dämmwert.
Der Übergang vom Rahmen zum Blatt ist dafür bei jeder Falzkonstruktion gut lösbar: Die Gummidichtung muss aber ohne Versatz und Lücke um das ganze Türblatt herum auf einer Ebene liegen. Das bedeutet aber auch, dass eine allfällige Senkschwelle so nah wie möglich bei der Dichtung liegen muss und ihr Gummi über die Türkante um das Fugenmass vorsteht.
All die vielen Fugen, die den Luftschall zurückhalten, müssen bei Brandschutztüren zwingend mit speziell zugelassenen Kitten ausgeführt werden. Das gilt auch für die anderen Dichtmittel. Selbst unter den Deckleisten muss ausgefugt werden.
Gerade im Zusammenhang mit Trennwänden findet die Blockrahmentür häufig Verwendung als Brandabschnitt, wobei eine grosse Verantwortung beim Monteur liegt.
Mit der Lieferung muss dem Monteur auch eine Montageanleitung zur Brandschutztür mitgegeben werden, deren Erhalt er auf dem Lieferschein bestätigt. Er übernimmt somit auch die Haftung für deren exakte Ausführung.
Beachten sollte man auch im Normalfall Folgendes: Bei flächenbündiger Montage nahe der Mauerkante birgt diese leider die Gefahr des Ausbrechens. Ein Versatz des Anschraubpunktes wie mit einem Z-Winkel ist da sicher hilfreich – wenn es zulässig ist.
Um keine Schall- oder Kältebrücke über dem Boden zu erhalten, sollte ein Kantholz als Platzhalter gesetzt werden, bevor der Estrich eingebracht wird. So lässt sich später der Rahmen gut einfahren.
www.frank-tueren.chVeröffentlichung: 16. April 2015 / Ausgabe 16/2015
Seminar. Mit 172 Teilnehmenden war das diesjährige VST-Seminar im Tägi in Wettingen AG ein voller Erfolg. Neben den Fachreferaten und einer Podiumsdiskussion konnten in diesem Jahr wieder 28 neue Türplaner zertifiziert werden.
mehr
Faltwände. Wände, die sich beim Aufschieben zusammenfalten, brauchen weniger Platz als eine gewöhnliche Drehflügeltür, und sie lassen sich dennoch sehr leicht bedienen. Damit können auch recht grosse Räume unterteilt und Räume in Räumen geschaffen werden.
mehr
PaidPost. Türschlösser nehmen durch das allgemeine Sicherheitsbewusstsein und wachsende Anforderungen an Barrierefreiheit und Funktionalität eine wichtige Position in Gebäuden ein. Gerade für spezielle Einsatzbereiche spielen auch selbstverriegelnde Panikschlösser eine wichtige Rolle.
mehr